Residential Project Estimate in North London

  • Home
  • Residential Project Estimate in North London

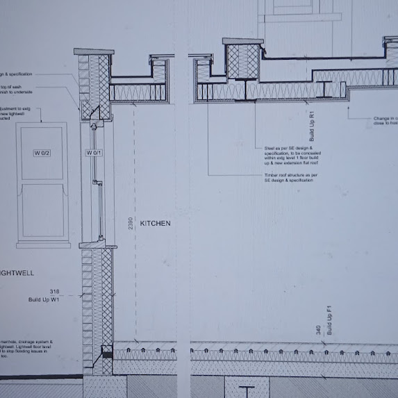
PEJA Surveying has recently produced an Estimate on this high-spec residential project in North London. The project consists of a ground-floor extension, plus refurbishment of the existing ground floor and basement. The estimate was submitted for circa £280k (Excluding VAT)

x

Based in Wimbledon, PEJA Surveying Ltd serve clients in London and the home counties with the highest standards of Quantity Surveying Services

Address
The Old Church, Quicks Road, Wimbledon,
London, SW19 1EX
Contact Us
Call: 020 3633 7334
Email Address: info@pejasurveying.co.uk
Working Hours
Monday – Friday : 8:00-18:00
Saturday : 8:00-17:00
Sunday : Closed